

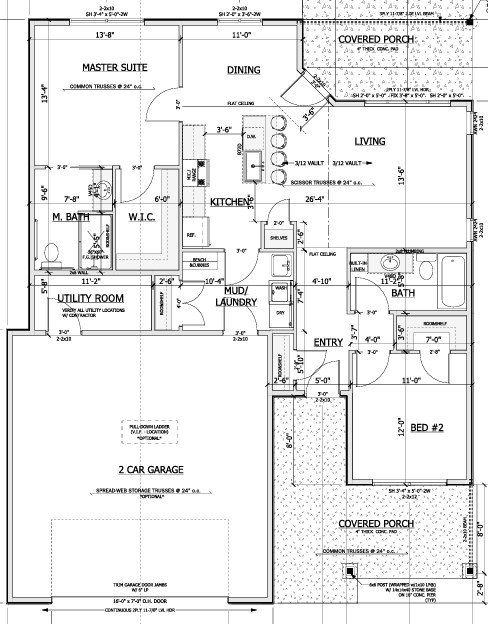
Chassel
The Chassel is a thoughtfully designed 2-bedroom, 2-bath patio home offering 1,250 square feet of efficient, comfortable living, all on one level. Designed with simplicity and ease in mind, this plan is perfect for those looking to downsize without sacrificing quality or functionality. Enjoy a quiet, low-maintenance lifestyle with inviting outdoor spaces, including a covered front porch and a spacious covered back patio, with the option to upgrade to a screened-in porch for added comfort. Inside, the Chassel features an open-concept layout, a well-appointed kitchen, and a private primary suite. With its practical design, peaceful feel, and focus on easy living, the Chassel is an ideal fit for retirees or anyone looking to enjoy a more relaxed, maintenance-friendly home.


Patio | 2bd | 2ba | 1250sqft | 2-car Garage 24ft wide










Starting at $310,000
Contact for available lots and pricing

Arvola Builders
Utilizing the latest design trends and construction techniques to deliver modern, functional, and aesthetically pleasing homes.
© 2026. All rights reserved.
532 Walnut st Monticello, MN 55362 United States




