

Clearwater
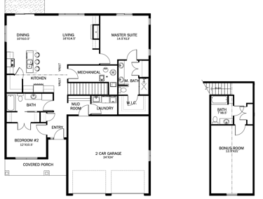
The Clearwater is a spacious and flexible home plan offering both patio home and rambler options. As a patio home, it features 2 bedrooms, 2 bathrooms, and 1,575 square feet of well-designed living space, including a large primary suite, an oversized pantry, and a generous 2-car garage, perfect for comfortable, single-level living. For those wanting more space, the rambler option adds an extra bedroom, a large family room, and an additional bathroom, expanding the home to accommodate growing families or guests. With its thoughtful layout, functional design, and quality craftsmanship, the Clearwater combines everyday comfort with flexibility to fit your lifestyle.


Patio | 3bd | 2ba | 1575sqft | 2-car Garage








Starting at $350,000
Contact for available lots and lot pricing
Rambler | 3bd | 3ba | 2700sqft | 2-car Garage
Lot fits oversized 2- car garage up to 28ft wide
Add on Bonus Room and bath| 431sqft

Arvola Builders
Utilizing the latest design trends and construction techniques to deliver modern, functional, and aesthetically pleasing homes.
© 2026. All rights reserved.
532 Walnut st Monticello, MN 55362 United States




