

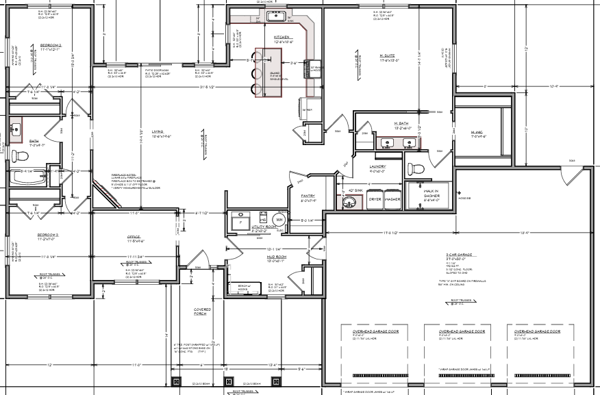
Oakridge
The Oakridge is a flexible, high‑end home plan offered as either a single‑level patio home, featuring 3 bedrooms, 2 bathrooms, an office, a gourmet kitchen, a stone‑accented living room fireplace, a covered back patio, a 3–4 car garage, and heated floors throughout the home and garage, or as a spacious rambler with a fully finished basement that expands the layout to 5 bedrooms, 4 bathrooms, a large family room, a wet bar, and optional spaces for an exercise room or spa retreat, giving homeowners the freedom to tailor the design to their lifestyle.


Patio | 3bd | 2ba | 2150sqft | 3-car or 4-car Garage
Rambler | 5bd | 3ba | 4150sqft | 3-car or 4-car Garage














$550,000-$950,000

Arvola Builders
Utilizing the latest design trends and construction techniques to deliver modern, functional, and aesthetically pleasing homes.
© 2026. All rights reserved.
532 Walnut st Monticello, MN 55362 United States




